编号: 6387

專屬別墅,擁有迷人景觀,出售於Escaldes

Andorra - Escaldes-Engordany | 别墅-楼房

1339 m2
睡房
4
浴室
4
价格
6.750.000 €

索取有关的更多信息 專屬別墅,擁有迷人景觀,出售於Escaldes

编号: 6387

| 6387

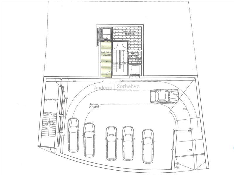
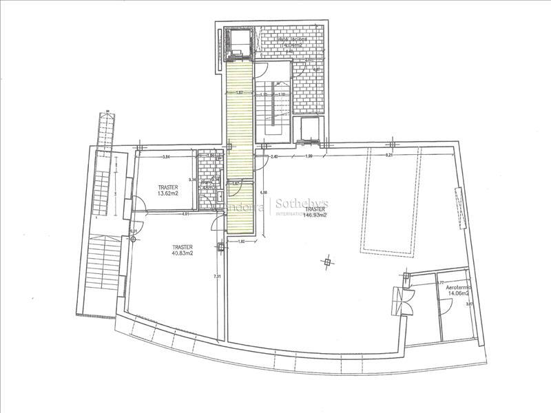
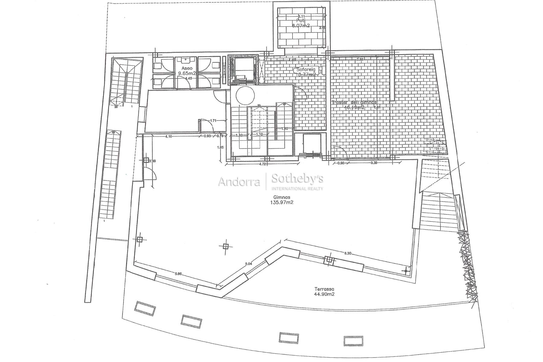
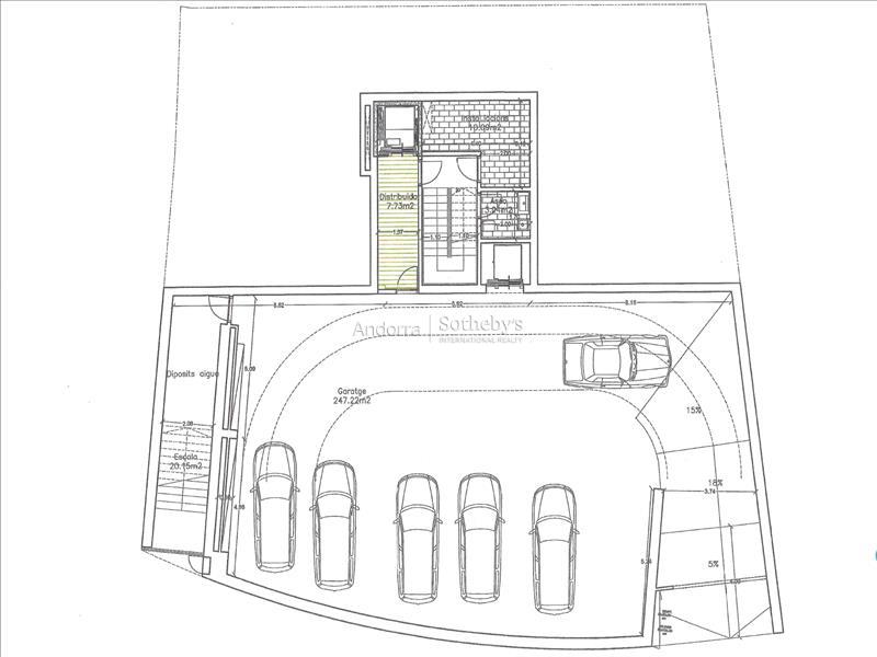
探索這座擁有迷人景觀的專屬別墅,位於Escaldes,這是一個結合奢華、寬敞與舒適的獨特物業,位置極佳。 總建築面積為1339平方米,位於612平方米的土地上,這座六層別墅提供現代且實用的設計,生活空間僅在三個月前經過裝修,採用頂級建材,如Bulthaup廚房。擁有135平方米的露台、137平方米的花園以及適合享受的戶外空間。 住宅區域從第3層到第5層,結合了開放式空間與高天花板,一座用埃及大理石製成,裝飾有照明扶手的樓梯連接所有樓層。客廳-餐廳配備燃氣壁爐,並通往一個大花園露臺和燒烤區,營造溫馨且高雅的氛圍。最近翻新的廚房設有中央島和儲藏區,邀請你享受難忘的烹飪時光。 在第4層,設有臥室區域,包括一個寬敞的閱讀空間、三間帶露臺的雙人臥室,以及兩個配備水療淋浴的浴室,其中一個還有通往一個小型花園區域。 主臥套房位於第5層,包括衣帽間、雙衛浴(各一),配備先進科技、按摩淋浴,還有一個帶景觀的浴缸,以及一個大型私人露臺。 在住宅樓層以下的第二層,有一個八平方米的戶外洗衣房院子,一個135平方米的健身房,設有游泳池預留預留空間(如有意擴建),還有一個附屬房,可用作桑拿房、哈曼或其他養生空間。該層還配備多用途洗手間區域,該層最初設計為辦公室,供員工使用。此外,還有一個45平方米的日光曬台,通過室外樓梯進入,非常適合放鬆和享受寧靜時光。 在一樓,設有一個147平方米的寬敞開放式空間,可用作遊戲室、家庭影院或娛樂空間,並配有一個獨立的小公寓,專為訪客或服務人員設計,擁有自己獨立的入口,確保私隱和舒適。 車庫最多可容納10輛車,內設用水槽、設備室和客用洗手間。為了完善設施,該物業配備了地暖系統、空氣源熱泵系統、空調、安全報警系統、兩部電梯(一部連接所有樓層,另一部直達健身區和休閒區),以及多項尖端科技系統,讓你的居住更安心、更便捷。

特征

  • 监控摄像机
  • 洗衣店
  • 透明植物
  • 体育馆
  • 雙層玻璃
  • 內置衣櫃
  • 陽光明媚
  • 露台
  • 阳台阳台
  • 冷气
  • 电加热
  • 停车处
  • 庭园
  • 电梯
  • 山景
  • 城市风光
  • 绿地
  • 熱水
  • 儲存室

能量等級 A

我们找到什么?

不到 5km

  • Molleres 2.1 km
  • Anyós 4.2 km
  • Santa Coloma 4.8 km
  • Sispony 4.9 km

不到 10km

  • La Massana 5.5 km
  • Encamp 5.5 km
  • Vila 5.6 km
  • Les Bons 5.6 km
  • Escas 6.2 km
  • Aixovall 6.7 km
  • Aldosa (L' ) (La Massana) 7.1 km
  • Erts 7.9 km
  • Ordino 8.1 km
  • Nagol 8.1 km
  • Sant Julià de Lòria 8.4 km
  • Sornàs 9.0 km
  • Xixerella 9.3 km
  • Ansalonga 9.6 km
  • Arinsal 9.6 km
  • Canillo 9.9 km
  • Aixirivall 10.0 km

距离首都

  • Andorra la Vella 1.6 km

索取有关的更多信息 專屬別墅,擁有迷人景觀,出售於Escaldes

编号: 6387